Lillieoak Tomich, Cannich, Beauly IV4 7LY
Traditional stone built cottage surrounded by a large garden with several outbuildings. Situated in the beautiful Highland region of Strathglass.
offers over £210,000
This detached traditional stone built cottage is situated in a tranquil setting near Tomich, a small village in the region of Strathglass which forms the gateway to the renowned wilderness of Glen Affric which is often considered to be one of the most beautiful glens in Scotland. The area is mountainous, forms part of an ancient Caledonian Forest and is rich in wildlife. The cottage is located approx. 20 miles to the west of the thriving village of Beauly and approx. 30 miles from the Highland Capital, Inverness which has a full range of entertainment venues & shops and it is also an easy commute.
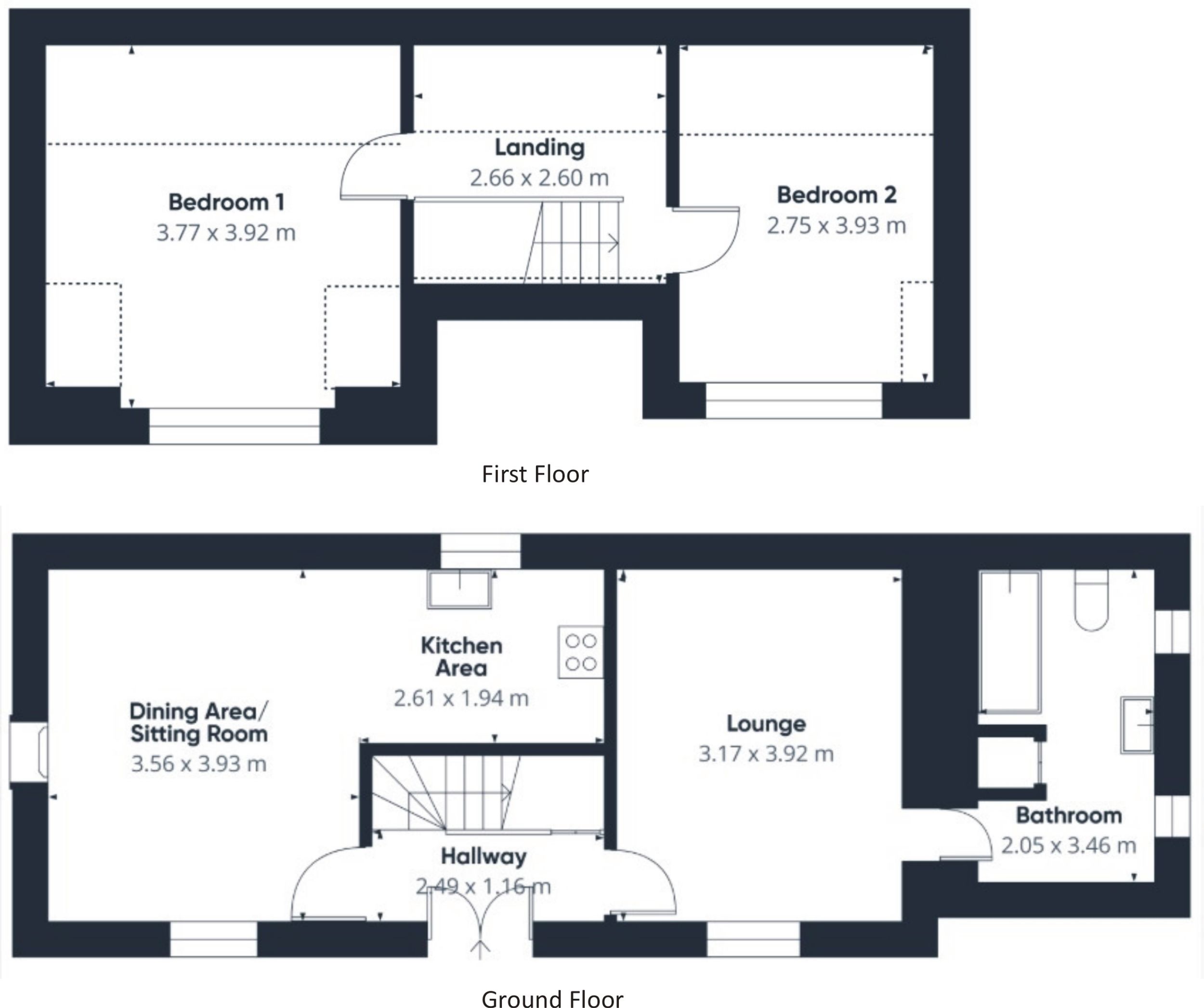
This charming traditional cottage was built around 1900 with a bathroom extension added later. Set in a large garden which extends to approx. 0.8 acre which has a garage, large shed/workshop, a stone outbuilding and a bird coop making this the epitome of country living. With its stunning location this cottage would also provide a wonderful rural holiday retreat. The house is in an idyllic setting and is perfect for those who appreciate the outdoors and all that this stunning area has to offer.
Request Home Report
Whilst the description is believed to be correct it is issued for the guidance of interested parties only. Measurements in particulars are only approximate and floor plans are indicative only and not to scale.
Directions from Inverness: Drive along the A862 towards Beauly then just after crossing the bridge take the left turn on to the A831 and keep on this road until you get to Cannich, go over the bridge and continue straight ahead. Just after the Fasnakyle Power Station take the left fork and follow the sign for Tomich then take the next right also signposted Tomich, continue along this single track road for approx. 1½ miles, on the left you will see a clearing with a row of bins, turn sharp left and take the central track, go along the length of this track and it will take you directly to the house.
We know the market, we know what works and we know how to get you the best price. Having the right team behind you will make all the difference.
Find Out More